Profile
Projects
Recognition
Contact
« Return to Projects
Hover over to Enlarge
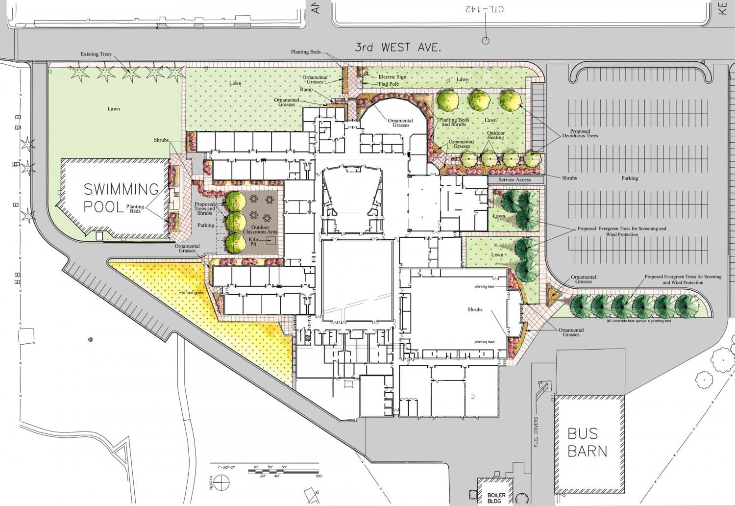
Kemmerer High School Improvements